A problem many boaters have is the unequal interests of their spouses in their real or imagined cruising adventures and, most specifically in “sailing” cruising adventures. Along came an East Coast customer who wished to spend the second half of his life with his wife continuing as his partner. It’s always a ticklish design issue, attempting to make a boat comfortable and unique enough to hold the interest of a less-than-eager spouse, yet capable and challenging enough to hold the interest and enthusiasm of the more experienced partner.
The Oysta 42 was specified to be a “motorsailor.” And not just a sailboat with an auxiliary engine. The Oysta 42 is a true 50/50 motorsailor capable of motoring through any sea condition; with the sail-assist it’s capable of doubling its useful cruising range from 1500 miles under power alone to better-than-3,000 miles with sail. And keeping an engine running affords a lot of comfort and luxury on board, while sail alone might work against the less willing crew member’s enthusiasm. An inboard low aspect ratio ketch rig was chosen to work within the design framework. Both masts are on tabernacles so that the rig can be easily lowered for canal passages. The aft pilot house design was selected allowing a large shaded (with boom canvas) outside deck area for carefree warm weather anchorages.
Power can be either twin small diesels of 50 hp each, or with one large single diesel of 100-120 hp. My own choice would be twin 4 cylinder 50 hp diesels as the maneuvering edge gained by twin engine installation more than justifies the small additional cost. And while motor-sailing, the lee sided engine can be left running which helps keep the shipboard electrics in shape.
In effect, the two diesels function like a built-in generator providing 12 volt and 110 AC power through high-output alternators and generous battery bank storage capabilities. Fuel tankage allows a range of 1,500 nautical miles under power alone.
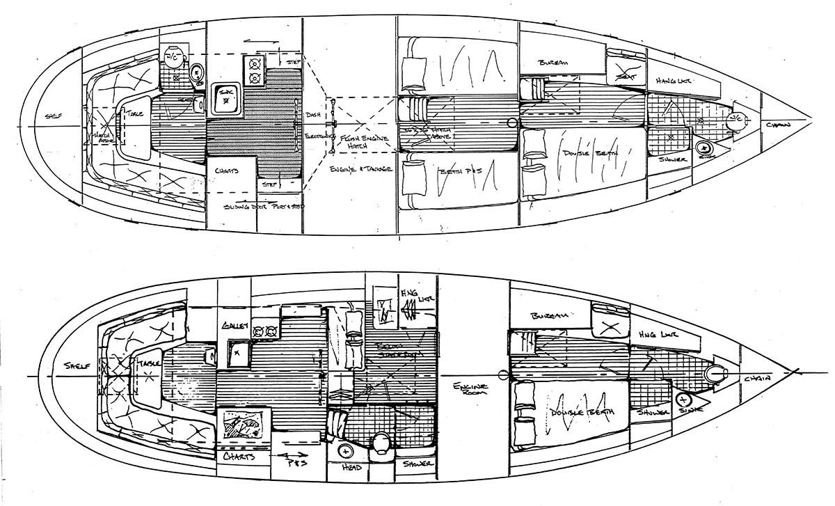
Moving aft past the large mid cockpit, the pilot house is entered through port and starboard sliding doors, and features a centerline mounted helm with inside-or-outside steering, chart table to starboard, galley to port, and a real bridge to work the boat from. Stepping aft and down is a huge settee with a large table and enough room to accommodate 6 adults. A small head is off to port for quick access from the pilothouse and salon.
With tabernacle rigs, a displacement of 24,000 lbs., modest draft of 5’0″ and room enough for a long cruise, I can just imagine leaving the snow behind for warm Caribbean winds, with good ripe local fruit and pungent island rum – and best of all with my favorite mate to enthusiastically share my adventure. — Sam Devlin
The Oysta 42 is available in study plans and as a custom build from Sam Devlin and his crack crew.
Oysta 42 Specifications |
|
| Length | 42 ft. – 1 in. |
| Beam | 12 ft. – 1 in. |
| Draft | 60 in. |
| Power | Inboard diesel, twin 50hp or single 100-150hp |
| Displacement | 28000 lbs. |
| Hull Type | Displacement |
| Sail Area | 481 sq. ft. |

