I am happy to report the launching and sea-trials are completed on the newest of the Devlin fleet — the “Moon River 48” and she is living up to all our expectations and dreams. She runs thru the water with an amazing grace, cutting thru the waves like there is nothing in her way. She is smooth and powerful on the water and with her twin John Deere engines purring away quietly in the cockpit, there is an almost dreamlike quality to her motion thru the water.
Top speed with the twin John Deere 315 hp Diesel engines is 23 knots at 80% of the power curve. That means she has a bit more speed potential in her but she would need to be operated above the 80% line and most boats don’t get run that hard. Cruising speed of 18 knots is easy, smooth, and quiet with the engines just sipping at fuel and you really think you’re moving at a slow pace but if you look aft, you can see she is marching along at a much faster rate.
She is also very docile around the docks and in tight quarters as she has the maneuvering ability of her twin screws to help the skipper out and with proportional bow and stern thrusters, you can really make her do virtually anything that you need. The 360 visibility from the helm is extraordinary and with tiny little adjustments to either the props or thrusters, it really is a low stress way to be on the water. One of the great virtues of a sedan type cruiser like the Moon River 48 is that the windage is low — there is plenty of boat in the water and not so much area above the water that the wind can push on. Really, she is a very pleasant boat to use.
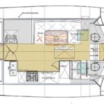
So let’s take a written tour through her and see what she has for space and accommodations. There is a floatational swim step on her rear with the level being just perfect for stepping onto the boat from a dock or from a dingy. There is mid-calf height 2” diameter stainless steel railings (staples) on the back of the swim step to help keep you centered but this is a 36” wide step and there is no lack of room or any feeling of insecurity when you step aboard. The cockpit is entered thru a door that hinges on the back of the transom and stepping up into the self-bailing cockpit is easy and secure. Stepping up into the cockpit you will notice the large cockpit area is half covered with a roof extension of the house with a couple of wide seats in the immediate back of the cockpit that allow the sun worshipers to stay happy and two almost 7ft. long seats port and starboard under cover of the roof extension for those passengers preferring shade. These covered seats are really the tops of the two engine boxes and with electric motors to raise them it is just the matter of pressing a couple of rocker switches and the engines are exposed. Between the engine box seats on the centerline cockpit sole is a flush hatch that if opened exposes a larger area between the engines. All access for checking oil, checking the water strainers, changing oil, and shifting fuel from one tank to another is done from this area. There is a ladder leading into it and everything is here from tool box stowage to spare oil soak rags, right at hand and well lit from a total of 8 lights — easy to get into and back out.
Moving forward is the centerline door to the main cabin with the galley immediately to the starboard side of the boat and on the port side is a large bureau top cabinet with hatch and door in it. This is the access to the second stateroom and by opening the hatch and swinging open the door, a ladder can access this area. There is a generous berth outboard in the space, locker room for duffels and hanging clothes and just below the cabin sole on the centerline of the boat is another single berth. This aft stateroom has a generous almost 7ft. headroom and is painted in white paint with mahogany wood trim and it looks clean and comfortable. Ventilation is provided by a larger hatch that opens into the cockpit of the boat just above the top of the engine box. There is also access to the main systems area of the boat either from the single berth under the centerline or thru another flush hatch in the main sole of the salon. Located in this space are the pumps for potable water, blackwater pumps, centerline water tank, inverter, Glendinning shore power cord basket, battery charger and more. This space is well lighted and completely finished with our traditional Devlin finishes. In fact, one of the things that we are most known for is our finishes with every part of the boat being an example of our simple but elegant finishes with all construction done to the highest level of quality and finish.
Back up in the main salon, the galley is to the starboard side and has the shape of a large “U” — the freezer and refrigerator are below counter, drawer type units and a trash compactor, sink, and a 4 burner range with oven complete the suit plus there are gobs of drawers for dish, silverware, pots, pans and all the other items a modern boat need to stow away. All drawers have sea-locks on them — simple swiveling tabs that lock the drawer into closed position and hold tight even in a tough sea-way. Opposite the galley is a “U” shaped dinette that can seat up to six with comfort with a varnished table of Bubinga wood that finishes out the dining area. Forward of the settee is the co/helm seat with the back being convertible from either the use for the settee or the use for the co/helm. Electronic instruments are on both the helm and the co/helm sides with the co/helm person able to help monitor the progress of the vessel or scout ahead for safe anchorages or obstacles. Lots of counter space behind the front windows allows the spreading out of charts or tide tables while underway. On the starboard side is a large helm area with full instrumentation and a helm seat that can actually seat two side by side if desired. More drawers and stowage spaces are festooned around the helm and co/helm area providing organized stowage of all items.
On the subject of ventilation, there are all-together 11 opening windows and hatches in the main salon/pilothouse of the Moon River not counting the main companionway door itself so it’s very easy to be comfortable and cool in this vessel either underway or at anchor or tied up to a dock.
Going down 4 steps into the focsle of the Moon River, you see the master head to starboard with full shower stall and on the port side an almost mirror image of the master head except for the shower stall for the crew. The doors to the two heads are arranged to be convenient to either using from the main salon for the crew and for using from the master stateroom up in the bows of the boat for the master head. A large door leads into the master stateroom forward with full island style queen sized berth forward and hanging lockers port and starboard for both the skipper and for the first mate. This is a spacious and light and airy feeling cabin with beautiful Alaska Yellow Cedar tongue and groove overhead and Yellow Cedar and Mahogany trim for all doors, drawers, fiddle, deck beams etc. The forward stateroom also has a large 28”x28” hatch in the ceiling with screen system on it for privacy.
Clear up forward ahead of the queen sized berth is the chain locker — it’s divided into two sides and the Moon River can carry 150 ft. of chain and 250 ft. of line anchor rode. Immediately above is a Lofrans anchor windlass and deck wash system.
This finishes our tour of the boat except to mention that there are strong welded type 316 stainless steel railings protecting the crew moving forward onto the foredeck and handrails and ladder to get to the roof top. Clear up on top of the Moon River is a Nick Jackson electric davit that has capacity to lift a 1,200 lb. tender onboard. Stainless steel dingy feet complete the vessel and with good access to the roof-top, the Moon River completes the test for a fine cruising vessel.
Build time on the first of these was just over 19,000 hours, an almost staggering figure in this mass-produced world that we live in these days. But it is a testament to the trust that our customers have in our craft that allows us to build a vessel like the Moon River. When you work on a project like this, it is quickly realized that there is something special about working with your hands, and your brain and building, indeed breathing life, into a vessel like her. Thanks to all for the effort and the chance to bring Moon River to the water. – Sam Devlin
The Moon River is available as study plans and as a custom build from Sam and his team.
Moon River 48 Specifications |
|
| Length | 47 ft. – 10 in. |
| Beam | 13 ft. – 8 in. |
| Draft | 40 in. |
| Power | Inboard diesel, twin 315hp |
| Displacement | 32000 lbs. |
| Hull Type | Semi-Displacement |
| Speed | 18 knots cruise @4.4gph/23 knots max |
- Moon River, Sam Devlin design





















