A good friend and boatbuilder in Korea commissioned this design. It followed some correspondence that we had about a preliminary design on the same concept done originally in 25ft. of length with a 10ft. beam but we quickly realized that if we really intended this to be a potential live aboard “Shanty Boat”, that some extra length and beam would pay dividends and give us much more room to work and live with and we quickly landed on this 28 ft x 12 ft version.
This idea of a “Shanty Boat’ is a beguiling one that holds many hours of musings and dreams in its web; the concept of doing a vessel that is commodious enough to really be comfortable as a live-aboard and one that could be moved from place to place either by water or by land as she is still of a size that a good flatbed trailer could move her about with ease. Imagine all the different adventures that we might have with her, perhaps starting down the Mississippi River, stopping for any length of time in all the interesting spots you discover, anchoring when privacy is desired and stopping periodically at marinas to pick up enough supplies to keep us in food and drinks. With the proper sized outboard, she could actually move-about under her own power enough to justify the expense and mess of rigging a control station. But a real salt would match her with a small tug (something like one of our Godzilla 22 or 25ft. models) and tow her about, using the tug like the car/pickup that all conventional landlocked campers have. Anchor in some secluded little bight in the waterway and use the tug to go to town re-stocking the larder or perhaps just for a break and a meal. Return to the mother ship and you’ve got your home intact and waiting patiently for you.

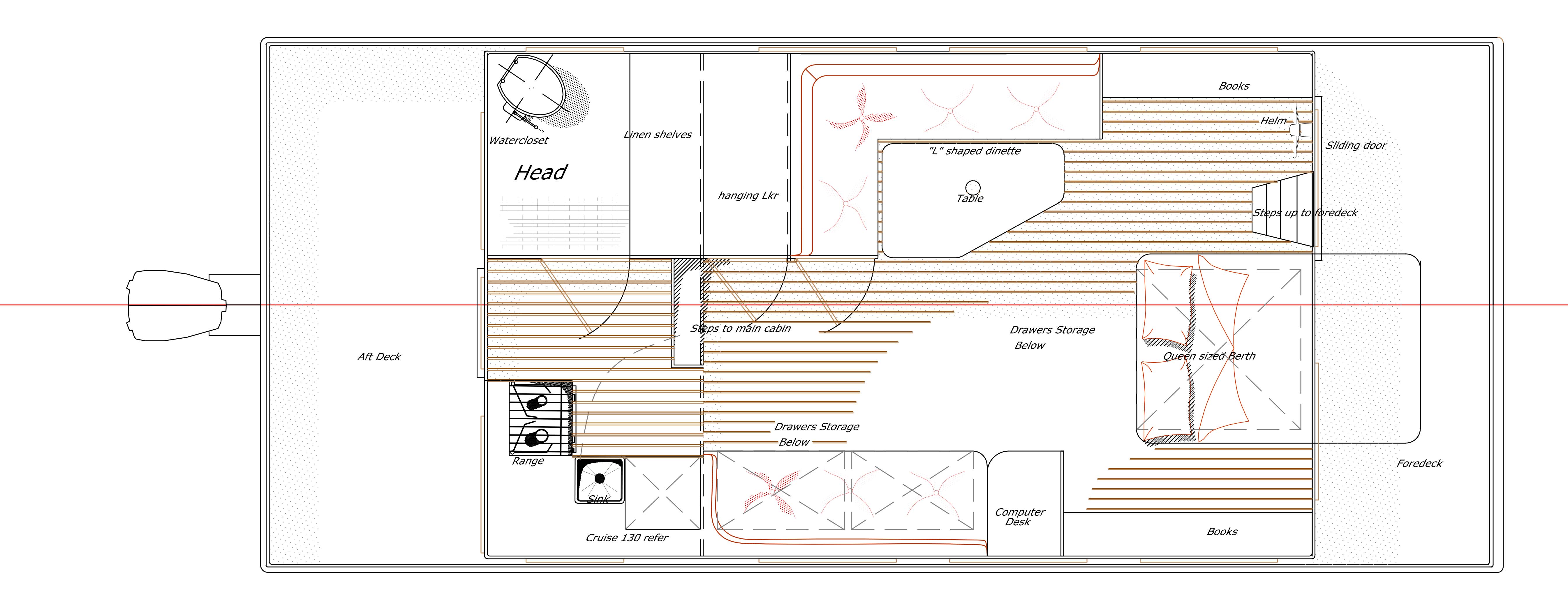
She has a good amount of space on her covered rear deck. This deck is at a lower level closer to the waterline which helps make boarding and exiting the boat easier and also allows us to sit in the shade on a warm day. If you fancy doing a bit of sunning, you’ve got a couple of options — either the fore-deck or it wouldn’t be all that difficult to climb up onto the foreward cabin top for a view of the world that would be unmatched.
But it is the cabin with its volume and spaces that really is the attraction of this boat with all the functions of a normal home — kitchen, bath, lounging, sleeping, stowage, bookshelves and entertainment center. If you really fancy living off the grid, a simple little gas or diesel generator could be fitted that would allow her to be fully functional and self-contained, but she also would be fitted with shore power connections that allows you to hook up to electrical at the marina. It is also simple to hook up to marina pressure water making her a completely functional floating home. The Millie Hill 28 has a full sized queen bed that can be arranged in a couple of ways and with both sides of the bed accessible, it’s ready to crawl into easily and comfortably. There is a full dinette that can seat 4 adults for a meal and with the opposing seat/couch, you can find yourself with a couple of possibilities for settling in for the evening. Stowage is built into the bases of these seating areas, always with the thought in mind that there seems to never be enough space for stowage on a boat. There are little bonus areas also — a computer desk on the starboard side that allows a space for this very vital function of modern life and a hanging locker on the port side. There is a shower in the head compartment and if desired, there’s even room for an all-in-one washer/dryer to be fitted into the underside of the linen stowage area in the head. Virtually every function of the normal home can be accommodated but most importantly, you can move the Millie Hill to wherever you desire which is really the key to this platform. There might be many hundreds of options of how you configure your own interior or set her up but the footprint of a bi-level cabin, with boarding area in the stern and the possibility of moving her about either under her own power or with a tug tow, is not to be understated. — Sam Devlin

The Millie Hill 28 is available in study and construction plans, and as a custom build from Sam and his team.

Millie Hill 28 Specifications |
|
| Length | 28 ft. – 5 in. |
| Beam | 12 ft. – 3 in. |
| Draft | 13 in. |
| Power | Outboard |
| Displacement | 14000 lbs. |

