The goal with Lichen 20 was to develop a smaller-sized sailboat (20 feet) able to comfortably cruise the backwaters and bays of the Northwest without excessive concern for draft. This vee-bottomed hull design is an answer to the challenge. The shallow draft can still yield a roomy comfortable interior suited for extended cruising. The Lichen features a retractable centerboard that draws 38″ down and just 17″ up, making shallow water navigation a snap. The shallow water draft combined with the medium light displacement (2500 lbs.) and moderately narrow beam, 7’8″, helps achieve another goal — trailerability.
On the water, Lichen 20 has a very traditional look. The large barn door rudder and large open cockpit combined with her 237 sq. ft. gaff rig set the scene for outstanding versatility in a pleasing package. The mast is on a tabernacle, folding easily up or down, another plus when trailering.
Under sail Lichen 20 is quite stable and sails well in a variety of wind and waves. It has always amazed me that these pram-bowed hulls sail as well as they do.
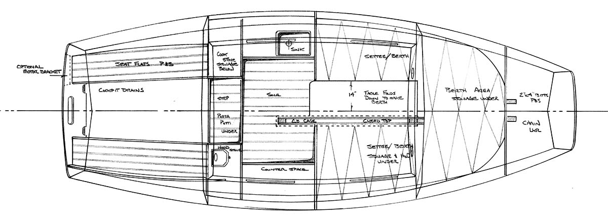
Interior accommodations include a large forward double berth, followed by opposing settee berth (centerline table attached to the centerboard trunk folding down to make even more bunk area.) To port is the galley, complete with ample workspace and storage, leaving the counter space uncluttered and visually pleasing. To starboard is a built-in wood stove serving as heater and dryer for wet gear. The portable head is under the companionway step. The most striking characteristic of the interior is the feeling of space and the visual freedom the large ports give you to view the beautiful scenery outside. — Sam Devlin
The Devlin Lichen 20 is available in study and construction plans.
Lichen Specifications |
|
| Length | 19 ft. – 7 in. LOD, 26 ft. – 1 in. LOA |
| Beam | 7 ft. – 8 in. |
| Draft | 1 ft. – 5 in. / 3 ft. – 8 in. |
| Displacement | 2300 lbs. |
| Power | Outboard 10hp |
| Sail Area | 237 sq. ft. tabernacle gaff |
| Ballast | 850 lbs. |
| Max Load | 1400 lbs. |


