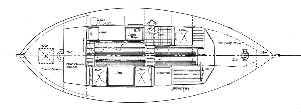
The smallest in our fleet of heavy “Workboat Type” designs, this double-ended full displacement power cruiser can hold her own in most any weather one can encounter. Her heavy hull takes the waves like a duck, and with a small economical diesel she can cruise for miles and miles. This would be a wonderful cruiser for a couple that just wants to step on board and set off for months at a time. Whether its cruising the Labrador coast or the Inland Passage to Alaska this little boat can handle just about anything Mother Nature can dish out. Range is more than 800 nautical miles and comfort level is high if you just don’t confuse things with too many passengers. She has berthage for three, an enclosed head, and enough deck room to carry one of our 9 foot 6 inch Guppy sailing dinghies. I can just see her waiting on a mooring loaded and ready to set off for the summer’s adventures. — Sam Devlin
The Kingfisher 26 is available as study plans. Contact Sam if you would like to see the design developed.
Kingfisher 26 Specifications |
|
| Length | 26 ft. – 4 in. |
| Beam | 9 ft. – 3 in. |
| Draft | 3 ft. 6 in. |
| Power | Inboard diesel |
| Displacement | 8000 lbs. |
| Hull Type | Displacement |

